YHZS25 portable concrete plant
YHZS25 portable concrete plant can be installed quickly on site. Composed of mixing system, batching system, transiting system, feeding system, weighing system, storage system and all the necessary equipment into together, installed on a transport chassis
YHZS25 portable concrete plant can be delivered to construction site in the hauling situation, then install quickly on site and get it to run without debugging.
YHZS25 portable concrete plant has low demands on the construction sites, so that it is suitable for any venue construction. In addition, it is very easy to change construction sites. Meanwhile, the mobile batching plant has the same function of HZS25 stationary batching plant.. There is a reversed installation position and space for pulse type dust collector on the main mixing machine. As long as the dust collector machine is installed, it can have the maximum dust removal effect on the working surface, so as to ensure the construction sites meet the requirements of high dust prevention, and protect the environment.
The Parameters of YHZS25 portable concrete plant
Item |
YHZS25(3.8m) |
|
theoretical productivity |
25m3/h |
|
weighing scale |
concrete |
2000kg |
|
cement |
510kg |
|
water |
150kg |
|
liquid addictive |
15kg |
overall power |
about 60KW |
|
power source |
380V/50HZ |
|
discharging height |
3.8m |
|
overall weight |
20t(optional parts not included) |
|
trail speed |
≤40km/h |
|
specification |
during work |
17x3.6x8.2m |
|
during transportation |
17.6x2.4x4.35m |
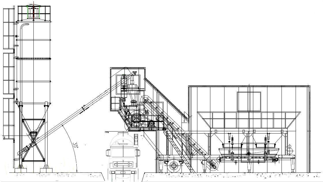
YHZS25 portable concrete plant layout
Components of Portable Concrete Batch Plant
The chassis is cantilevered, which contains the towing pin of the truck and the parking legs. In addition, the weighing scale of mixer, cement and water admixture is put on the chassis.
Control system. The control room is at the bottom of the chassis of the main engines, the automatic control system of the portable concrete batching plant is installed inside it, which is the same as the stationary mixing plant. When working, the control room is used as the front support point of the whole plant. During transit, the control room is folded up and stored in the inner space of the support. The control lines needn’t to be dismantled.
Aggregate weighing and batching system. It is at the back end of the whole equipment, the upper part is the aggregate storage hopper which can be divided into two or four grids, and is equipped with a heightening plate to increase the storage capacity. The aggregate measurement adopts the method of cumulative measurement of various materials. In addition, it is equipped with a walking rear axle and frame legs for working at the bottom.
Belt conveyor rack. It is a truss structure which connects the chassis of the main engine with the aggregate batching rack. The main frame, belt frame and batching frame are integrated to form the main structure of the whole mobile type concrete mixing equipment.
Mixing equipment. We adopt the high performance concrete mixer which can mix the fluid and hard concrete quickly and evenly.
Other components. Cement silo and screw conveyor are the peripheral parts. They are integral parts whether working or transportation, so they can be transported and disassembled as a whole.
News & knowledge
- What is the price of a portable concrete plant?
- What are the advantages of Portable concrete plant?
- How does the Portable concrete plant work?
- Advice for Erecting Portable Concrete Plants
- Learn More



















