HZS50 concrete plant
HZS50 series concrete plant(concrete mixing plant) belongs to compulsory and efficiency equipment,It is a small and medium-sized concrete plant. with fully automatic control systemwhich can produce various kinds of concrete including quaking concrete, hard concrete and other ratios of concrete with features of high production efficiency, high mixing quality, stable and reliable, long lifespan etc.

As model HZS50 concrete plant, this skip hoist type concrete mixing plant adopts JS1000 twin-shaft concrete mixer, is a new type of compact-structured mixing plant with very small occupation of ground area. Although it’s compacted design, the host mixer is capable enough to produce evenly proportional concrete in very efficient way, so this plant is very popular in various construction projects like precast yard, different kinds of buildings, roads, bridges and even commodity ready-mixed factories.
For process of HZS50 stationary concrete plant, the loader can deliver the materials which offered by batching machine. The twin shafts concrete mixer and cement will be stored in cement silo with the help of screw conveyor to deliver. And the water will be controled by water pump, besides, water and cement will be decided by check weighter.
This whole producton line will be working under the full automatic computer. With the functions of a recipe storage and automatic compensation, and it is also equipped with a separate manual operation system to enable the mixing process manual and automatic control.
Specifications
Specification |
Unit |
Value |
Productivity |
m3/h |
50 |
Capacity of Mixer |
m3 |
1 |
Mixer Power |
kw |
37 |
Discharge Height |
m |
3.8(for customers choice) |
Aggregate Bin |
Quantity |
3 |
Aggregate Bin Capacity |
m3 |
1.6 |
Max. Weighing Value of aggregate |
kg |
3000 |
Max. Weighing Value of cement |
kg |
600 |
Max. Weighing Value of water |
kg |
400 |
Max. Weighing Value of additive |
kg |
50 |
Aggregate Measuring Accuracy |
% |
2 |
Water Measuring Accuracy |
% |
1 |
Cement Measuring Accuracy |
% |
1 |
Additive Measuring Accuracy |
% |
1 |
Cement Silo |
_ |
Optional |
Cement Screw Conveyor |
_ |
Optional |
Cement Silo Capicity |
_ |
Optional |
Control Mode |
_ |
Auto/Semi control |
The Introduction of HZS50 Concrete Plant Components:
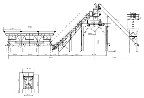
concrete batching plant layout

1). Aggregate Batching Machine
1. With high productive and long time wearing parts.
2. Electric weighing equipment with buffer device and auto compensation function.
3. International popular modular compact structure
4. Easy to install and remove and assembly
5. Adapt and apply the most advanced technologies around the world.
6. Excellent mixing performance
7. Main electrical components from Germany SIEMENS.
2. JS1000 Concrete Mixer
1. JS series concrete mixer with twin shaft compulsory concrete mixer2. Not only work independently, also can work with PLD series aggregate batcher to make a simple concrete plant or adopted as the mixer in the high-end concrete batching plant.
3). Cement Silo
1. Steel cement silos are equipped with safety valve to balance the pressure inside and outside the silos.
2. It can be equipped level indicator so as to monitor the material level and amount.
3. With screw conveyor, the materials can be conveyed to a certain position.
4. Suitable for loading into containers and exporting
5. Perfect sealing assures its efficient working performance.
About HZS50 concrete plant knowledge
- 1 The capacity of the concrete plant is theoretical productivity, and the actual capacity may be less than the theoretical value.
- 2. The floor space refers to the footprint of the main body of the concrete batching plant. It does not include the floor space of the aggregate yard, living area, laboratory and other functional areas. The concrete plant of the same type may adopt different structural forms according to the needs of users. The footprint and standard footprint are different.
- 3. The discharging height is the receiving height of the standard concrete mixer truck. It can be adjusted according to the actual needs.
- Learn More