HZS60 concrete plant
HZS60 concrete plant is forced type high efficiency concrete production equipment.It is a medium-sized concrete plant. The plant has various operational modes as fully automatic, semi-automatic and manual and so, a high degree of automation.

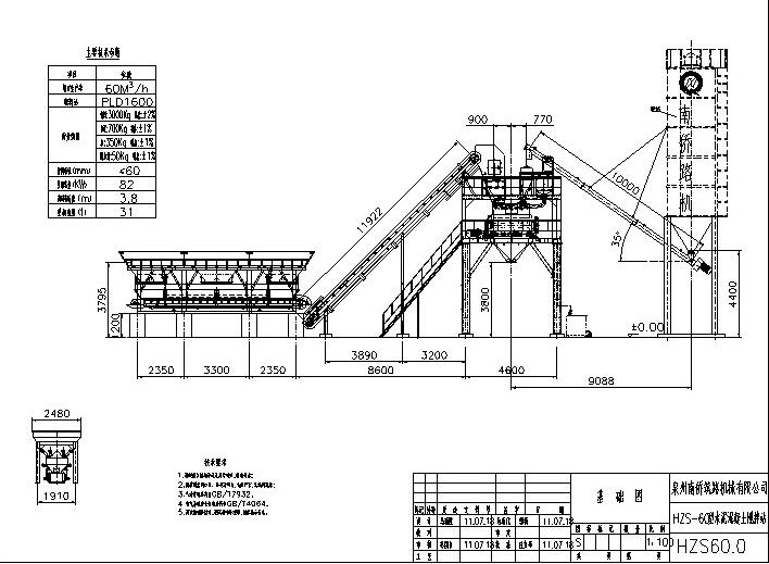
The HZS60concrete plant has the theoretical productivity of 60 m³/h. It is equipped with a JS1000 compulsory mixer and a PLD1600 aggregate bin. The maximum productivity of the screw conveyor is 80 t/h. At the same time, the maximum particle diameter of the aggregate is 80 mm. The capacity of the aggregate bin is 51 cubic meters.
HZS60 concrete plant needs a solid base to stabilize the batching plant. In addition, it consists of cement silo, screw conveyor, aggregate bin, twin-shaft mixing host, computer control and metering system, etc.
It is suitable for the commodity concrete and concrete construction in each kind of architectural project, including the water conservancy , the electric power , the railroad, the road , the tunnel, the arch of bridge , the harbor-wharf and the national defense-project and so on, the applicable scope is extremely wide spread.
Specifications
Specification |
Unit |
Value |
Productivity |
m3/h |
60 |
Capacity of Mixer |
m3 |
1 |
Mixer Power |
kw |
37 |
Discharge Height |
m |
3.8(for customers choice) |
Aggregate Bin |
Quantity |
3 |
Aggregate Bin Capacity |
m3 |
1.6 |
Max. Weighing Value of aggregate |
kg |
3000 |
Max. Weighing Value of cement |
kg |
600 |
Max. Weighing Value of water |
kg |
400 |
Max. Weighing Value of additive |
kg |
50 |
Aggregate Measuring Accuracy |
% |
2 |
Water Measuring Accuracy |
% |
1 |
Cement Measuring Accuracy |
% |
1 |
Additive Measuring Accuracy |
% |
1 |
Cement Silo |
_ |
Optional |
Cement Screw Conveyor |
_ |
Optional |
Cement Silo Capicity |
_ |
Optional |
Control Mode |
_ |
Auto/Semi control |
The Introduction of HZS50 Concrete Plant Components:
concrete batching plant layout

1). Aggregate Batching Machine
1. Adopts modular structure, easy to install and assembly and convenient to transport.
2. The mixing console adopts JS1000 twin shaft compulsory concrete mixer.
3. Measurement of components and control components are importing from USA, Japan, Germany.
4. Computer control system can keep the accuracy and stable measurement performance.
2. JS1000 Concrete Mixer
1. JS series concrete mixer with twin shaft compulsory concrete mixer2. Not only work independently, also can work with PLD series aggregate batcher to make a simple concrete plant or adopted as the mixer in the high-end concrete batching plant.
3). Cement Silo
1. Cement silo is suitable for bulk cement and dry fly ash, grain and waterproof.
2. Cement silo is cylinder and supporting structure.
3. Cement silo generally adopts bulk cement conveying concrete truck to delivery the powder into the bin by pneumatic conveying.
About HZS60 concrete plant knowledge
- 1 The capacity of the concrete plant is theoretical productivity, and the actual capacity may be less than the theoretical value.
- 2. The floor space refers to the footprint of the main body of the concrete batching plant. It does not include the floor space of the aggregate yard, living area, laboratory and other functional areas. The concrete plant of the same type may adopt different structural forms according to the needs of users. The footprint and standard footprint are different.
- 3. The discharging height is the receiving height of the standard concrete mixer truck. It can be adjusted according to the actual needs.
- Learn More